粉体行业在线展览
MYB1600-1S
1-5万元
雷蒙特
MYB1600-1S
4459
雷蒙特MYB系列摇摆筛是公司引进国外先进技术,结合公司十几年生产经验而专门设计制造的一种大产量,高精度的筛分设备。MYB摇摆筛是为了满足大产量,高精度,高附加值物料筛分的目的而设计的,其有效的模拟了人工筛分运动而实现了极高的筛分效率。公司每年都有大量的摇摆筛设备销售到国内以及世界各地。MYB系列摇摆筛优异的筛分效果赢得了客户的广泛赞誉。
应用行业:淀粉深加工、塑料、食品、化工、结晶粉末、硅粉、石英、氢氧化铝、石墨、电池
摇摆筛工作原理
摇摆筛基本的回转运动与人工筛分相类似。摇摆筛依赖于径向,切向和偏心定向运动,以在屏幕表面上以小圆圈旋转颗粒。三个方向力的组合形成椭圆。材料保持与屏幕表面的接触而不是升高,具有水平滚动效果。材料以椭圆形方式在屏幕表面上移动。当材料在筛网上翻滚时,随着与筛网的接触时间增加,它将通过筛网落下的可能性增加。设备通过机械设置三个控制变量,以达到**的筛分效果。
摇摆筛设备特点
高达5倍的单位面积产出;
精确到6级分离,筛分效率高达95%-99%;
使用硅胶球、超声波、转筒刷等高效清网装置系统,筛孔不会堵塞。
密闭除尘,操作安全;
加速度比振动筛低4.5倍,筛分零件寿命提高而维护减少;
噪声<75分贝。优化重理均衡,地基动态负荷低。
设备可选配手动/气动升降装置以方便更换筛网。
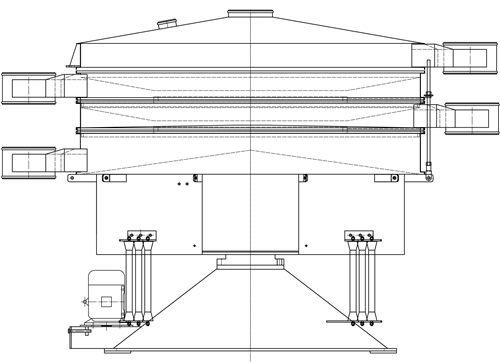
设备外型图:

