1、项目背景:
目前,在锂电粉体干法混合过程中,通常采用机械式高速混合机,由于机械搅拌叶片的剪切力过大,易导致球形颗粒破碎,表面粗糙化。同时,在搅拌过程中,由于颗粒之间、颗粒与桨叶之间发生硬性碰撞,造成球形度下降,导致粉体产生微裂纹,进而影响产品品质。

高速混合机示意图
2、WX系列外循环混合机:
湖南经源科技的WX系列外循环混合机通过对机械混合机进行优化,在不影响搅拌效果的前提下,显著提升混合效率与质量。
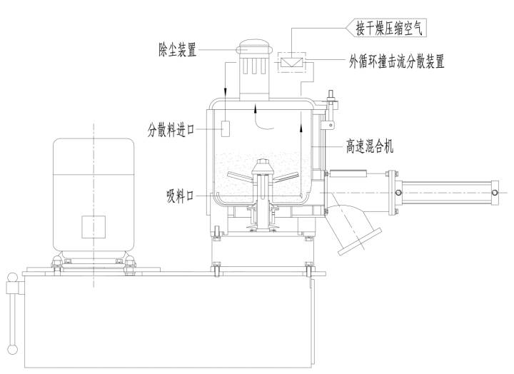
外循环混合机的原理是在机械混合机的基础上,增加外循环气流分散系统。
在内部,通过机械旋转的桨叶对物料进行柔和的碰撞与剪切,使粉体颗粒进行搅动和分散,实现宏观的混合;
在外部,设置气流分散系统,一方面实现物料空间位置的有效交换;另一方面,利用气流撞击分散装置,实现物料的强效流化分散,完成高效、均匀的分散及混合。
3、产品特点
(1)产品品质好,不影响颗粒形貌:WX系列外循环混合机设置外循环分散装置,运行过程中,可通过减小叶片的旋转速度,从而降低桨叶对物料搅拌的强度,减少对产品形貌的影响。
(2)粉体混合时间短:WX系列外循环混合机通过设置外部气流分散装置,可实现粉体高效、快速的分散,提高混合效率,相较传统机械混合机,混合时间减少1/3以上。
(3)粉体不升温:WX系列外循环混合机因增加混合气流分散装置,一方面可适当降低机械混合机的转速,减小摩擦生热,另一方面,由混合过程产生的热量,可通过压缩空气的调解,经除尘装置及时排出。

外循环混合机示意图
4、外循环混合机组成

5、性能对比

623
0- 1四方仪器原位激光拉曼光谱气体分析仪 LRGA-3200EX
- 2四方仪器激光拉曼光谱气体分析仪 LRGA-6000
- 3产品手册
- 4四方仪器原位激光过程气体分析仪(对射式)GasTDL-3100
- 5四方仪器便携煤气分析仪Gasboard-3100P
- 6四方仪器 高温紫外烟气分析仪 Gasboard-3600UV
- 7真空应用设备【2025年12月】
- 8真空配套设备【2025年12月】
- 【助力科研】粉末挤出3D打印破解多材料梯度惰性阳极烧结开裂难题,推动无碳铝电解发展
- 粉末挤出3D打印制备难熔金属和先进陶瓷发展趋势
- 顶刊速递|为什么温敏水凝胶的研究进展值得关注?
- 声共振机械合金化 制备Ni-Al反应材料的可行性研究与机理探讨
- 突破肽类高浓度制剂瓶颈 声共振技术实现稳定纳米悬浮
- 常驻顶刊!为何磁性纳米粒子的研究如此“高产”?
- 日本石川擂溃机化学工业实验用装置的高效选择
- 为什么COFs的催化应用近期顶刊不断?
- 从“作用”到“场域”:粉碎技术的范式演进与柯立微能量场理论的构建
- 大明化学氧化铝粉在低温烧结制粉中的应用
- Development, Characterization, and Molecular Dynamics Simulation of Andrographolide Nanosuspensions Utilizing Hummer Acoustic Resonance Technology
- 苏州碳丰科技首席科学家程金生老师以本公司名义在国际上发表关于石墨烯纤维的论文《石墨烯纤维纳米复合材料的合成及氨基酸检测的分析应用》:
- 介可视·散装物料库存管理雷达全景扫描系统在料仓、堆场中的应用
- 磷酸化修饰鬼臼果多糖的制备及生物活性
- DSR论文解读:Advanced Science News 报道中科院长春应化所新型非铂催化材料研究成果
- High-throughput preparation, scale up and solidification of andrographolide nanosuspension using hummer acoustic resonance technology(纳米混悬剂制备的前瞻性技术 - 蜂鸟声共振)

