粉体行业在线展览
煤炭行业专用仪器
安全防护用品
电化学仪器
仪器专用配件
光学仪器及设备
试验机
X射线仪器
常用器具/玻璃耗材
气体检测仪
应急/便携/车载
动物实验仪器
临床检验仪器设备
微生物检测仪器
芯片系统
泵
分离/萃取设备
恒温/加热/干燥设备
清洗/消毒设备
液体处理设备
制样/消解设备
磁学测量仪器
燃烧测定仪
无损检测/无损探伤仪器
半导体行业专用仪器
纺织行业专用仪器
金属与冶金行业专用仪器
专用设备
石油专用分析仪器
橡塑行业专用测试仪
3D打印机
环境试验箱
电子测量仪器
工业在线及过程控制仪器
生物耗材
相关仪表
波谱仪器
辐射测量仪器
水质分析
成像系统
分子生物学仪器
生物工程设备
细胞生物学仪器
植物生理生态仪器
纯化设备
合成/反应设备
气体发生器/气体处理
实验室家具
制冷设备
测厚仪
测量/计量仪器
实验室服务
其他
包装行业专用仪器
建筑工程仪器
锂电行业专用测试系统
农业和食品专用仪器
危险化学品检测专用仪器
药物检测专用仪器
产品>
分析仪器设备>
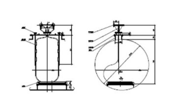
>管束式高通量换热器
管束式高通量换热器
直接联系
上海务宝机电科技有限公司
上海
面议
上海务宝
1285
对于强腐蚀性介质的换热(如镀锡液、镀铬液、酸洗液等),通常采用耐蚀|合金和非金属材料,耐蚀合金价格昂贵,设备一次性投资大,而非金属常用的有塑,料盒石墨材料,塑料的导热系数低,传热效果差,石墨导热效果虽好,但质脆,需要制成固定形状的设备,无法满足易结垢物料的传热要求。因此对于这类介质的换热,需要寻求新型的换热设备。
产品咨询
请填写您的姓名:*
请填写您的电话:*
请填写您的邮箱:*
请填写您的单位/公司名称:*
请提出您的问题:*
您需要的服务:
中国粉体网保护您的隐私权:请参阅 我们的保密政策 来了解您数据的处理以及您这方面享有的权利。 您继续访问我们的网站,表明您接受 我们的使用条款
导热胶泥系列产品
硅钢退火炉罩抗氧化吊耳
酸洗质量稳定剂
酸洗液性能在线检测设备
智能擦辊器
镀锡板表面黑灰擦除装置
镀液添加剂浓度自动测试仪
窄间隙电阻焊焊缝质量检测
带钢边部缺陷在线检测
带钢边部缺陷在线检测系统
带钢拉矫破鳞试验机
定制5台机连体配套
SEM5000X
DLabs-MRS
防爆触摸屏/防爆电脑/防爆电脑
金属回收系统
低温催化LCO
自动吸盘振动器离心式G08T
干燥机控制
智能控制系统
PicoFemto扫描电镜原位光电力一体化系统
BSD-TD-K气体置换法
灰库系统