
工作原理及特点 工作原理: 旋转闪蒸干燥机在研制的过程中其着眼点是最大限度的增加其分散度,即增加单位体积湿料中的表面积,加速传热和传质过程。所需空气经鼓风机送入燃气热风炉加热后,由底部环缝间隙进入搅拌粉碎干燥室,产生螺旋上升气流;湿物料由斗式提升机送入搅拌分散罐里混合,分散均匀后,经螺旋加料器连续定量的加入干燥机,初步干燥后的产品随同热空气一起进入布袋除尘器,将产品收集到成品料仓中,尾气再由引

输送是化工、冶金、建材、制药、粮油、食品、锂电、饲料、铸造等行业在生产过程中不可缺少的环节,目前我国粉料包装主要采用袋装或是桶装,主要目的是为了方便运输,一般情况下是以单件50kg为最大重量,由粉料生产者进行生产、包装,再运送至各个中间加工厂商,进行解包、加工、配料等环节,各个行业几乎都采取这种方式,但是,这种方式有着较为明显的弊端,如粉尘过多,环境污染状况得不到控制,危害工人身体健康,配料周期性

从长远角度来看,投资全自动吨袋包装机确实具有较高的性价比优势。虽然初期购置成本相对较高,但其带来的经济效益却是显而易见的。首先,它能显著提高工作效率,缩短单个产品的生产周期;其次,减少了人力投入,降低了劳务费用支出;再次,精确的控制减少了物料浪费现象的发生;最后,稳定的性能保证了连续生产的可靠性,减少了停机维修的时间损失。综合计算下来,往往能在较短时间内收回投资成本,并且持续为企业创造利润。因此,

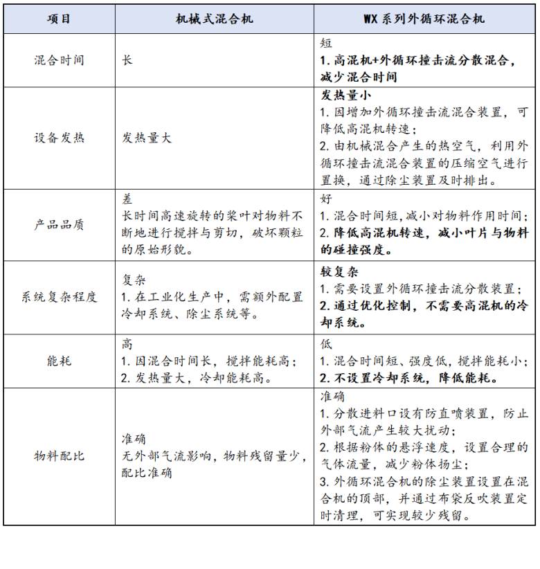
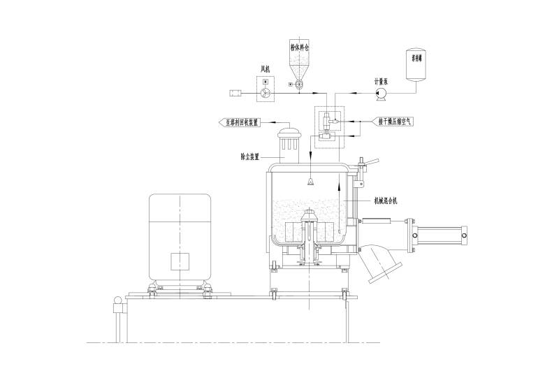
1、项目背景: 目前,在锂电粉体干法混合过程中,通常采用机械式高速混合机,由于机械搅拌叶片的剪切力过大,易导致球形颗粒破碎,表面粗糙化。同时,在搅拌过程中,由于颗粒之间、颗粒与桨叶之间发生硬性碰撞,造成球形度下降,导致粉体产生微裂纹,进而影响产品品质。高速混合机示意图2、WX系列外循环混合机: 湖南经源科技的WX系列外循环混合机通过对机械混合机进行优化,在不影响搅拌效果的前提下,显著提升混

1、项目背景: 目前,在粉体干法混合过程中,通常采用机械式混合机,由于机械混合机的桨叶无法覆盖容器的边缘、角落等区域,混合过程中存在“死区”。另外,当粉体间的粒径、密度、形状差异较大时,易发生“偏析”,导致混合均匀性受限。高速混合机示意图2、WX系列外循环混合机: 湖南经源科技的WX系列外循环混合机通过对机械混合机进行优化,在不影响搅拌效果的前提下,显著提升混合效率与质量,可处理易团聚、密

当行业标准和监测设备都聚焦于超微粒子时,谁在关注那些“更大的粒子”?在锂电池制造中,针对≤5.0um微粒的监控体系已日趋成熟。对于工艺中产生的>5.0μm颗粒,因常超出常规监测范围,长期处于被忽视的“监管盲区”。目前,许多锂电企业认为,只要严格控制微小颗粒,即可保障电池的正常生产,将洁净度管控的重心几乎放在了 ≤0.5μm 的微粒上。实际上,这些大粒子同样是影响电池性能与安全的潜在威胁,其风险尚未

在现代高分子材料科学中,环氧胶粘剂因其优异的粘接性能、良好的耐热性与化学稳定性,被广泛应用于航空航天、电子封装、汽车制造以及建筑结构等领域。然而,纯环氧树脂体系存在韧性不足、内应力大等缺陷,限制了其在高性能应用中的进一步拓展。为了改善这些性能,研究人员常通过添加功能性填料来优化胶粘剂的力学性能。其中,气相二氧化硅(fumed silica)作为一种纳米级无机填料,因其高比表面积、良好的分散性和表面

蜂鸟声共振技术通过(低频声波+机械共振)可实现微纳米级粉体、高粘稠、高固含、大密度差、大质量比、高敏感等各种类型物料的处理。本期案例是在真空环境下混合含药物的保鲜膜原料,从图中可以看出,在传统技术下原料混合干燥后存在大量气泡。而在蜂鸟声共振(HAM)技术混合干燥下的保鲜膜料体均匀,纳米级材料均匀分散,成膜后无气泡,质量优异。PS:案例来源-广西中医药大学上图是混合原料,下图是蜂鸟声共振混合后成膜传

护腿是Brookfield LV和RV系列标准粘度计/流变仪校验校准的一部分。我们应该了解它的目的和用途,以及对测量数据可能存在的影响。有了这方面的深刻认识,用户甚至可以改进Brookfield所推荐的操作方法,以适应自身的实际需求。设计的初衷Brookfield标准粘度计/流变仪的护腿最初的设计目的在于在使用过程中保护转子(参阅下图)。Brookfield粘度计的第一个应用是手持粘度计测量在一个

软胶囊属于一种包装方式,常见于药品或保健食品,它是将液体药物或液固体药物经处理密封于软质囊材中而制成的一种胶囊剂,软质囊材是由胶囊用明胶、甘油或其他适宜的药用辅料单独或混合制成。客户是国内一家年销售额180亿元的知名保健品制造企业,公司不但兴建了高标准的GMP生产基地,通过了标准协会质量管理体系认证,还获得了86项专利、并向国家食品药品监督管理局成功申报了32种保健品。经过客户的研究表明,利用梅特

叶绿体(Chloroplast)是绿色植物和藻类等真核自养生物细胞中专业化亚单元的细胞器,能将光能转化成化学能。叶绿体通常呈现细长的形态,其大小变化很大,高等植物叶绿体通常宽 2~5 μm,长 5~10 μm。它们被两层膜所环绕,构成了叶绿体被膜(Chloroplast Envelope),这与线粒体的结构相似。同样地,叶绿体能够独立于细胞分裂进行自我复制,分裂成两个新的叶绿体。叶绿体内部有许多基

防污闪涂料作为电力设备外绝缘防护的核心材料,其绝缘性能直接关系到电网运行的稳定性。气相二氧化硅作为防污闪涂料的关键功能填料,可通过调控材料微观结构提升其电绝缘特性。湖北汇富纳米材料股份有限公司技术人员以空白样、竞品及添加气相二氧化硅HB-132的涂料为研究对象,从体积电阻率、介电强度、耐电蚀损性三个核心指标,分析HB-132对防污闪涂料绝缘性能的增强效果。图1一、体积电阻率:绝缘阻隔能力的核心指标

设备咨询:13035695787金属碳化物经超微粉碎与分级后,粉体具备粒度细、分布窄、纯度高、活性强等特性,能大幅提升下游产品的性能,其应用领域覆盖高端制造、新材料、电子信息、航空航天等多个核心产业。碳化钨(WC)、碳化钛(TiC)、碳化铬(Cr₃C₂)、碳化硼(B₄C)、碳化硅(SiC)这类超硬金属碳化物的超微气流粉碎与分级,核心是适配其高硬度、易污染、粒度严控的需求,主流采用流化床式气流粉碎+

各种研究表示,颜色会影响人们对食物味道的期待值。事实上,我们甚至在第一次品尝之前,就已经通过食物或饮料的颜色来判断味道。我们期望红色食物能像草莓或樱桃一样甜,白色应该尝起来像香草,而绿色可能是青柠味、酸涩的或薄荷味。颜色特征甚至会决定我们是否吃下第一口。例如,当绿色出现在错误的食物上,如土豆泥或南瓜饼,我们大多数人都不会尝试!在炎热的夏天,当您只想着一种香甜、清爽的食物时,而如果冰柜里的冰淇淋颜色

随着建筑行业的发展,很大一部分矮小建筑物开始拆除重建成高楼大厦,工人对老建筑物拆下的破损红砖不擅于重复利用,造成大量的建筑固废红砖侵占了越来越多的土地,对生态环境造成了严重影响,因此废弃红砖的无害化处置及资源化利用已成为社会关注的焦点。小型灰砂砖磨粉设备可以实现废砖的综合利用。那么,砖磨粉可以做什么?桂林鸿程作为小型灰砂砖磨粉设备厂家,今天为您介绍一下废砖磨粉掺入混凝土的应用。 随着我国

在新材料与高端制造领域,高温真空热处理已从一道“支撑工序”,跃升为决定材料性能极限与稳定性的核心环节。工艺窗口的日益收窄,使得结果的微小波动即可能引发产品性能的显著差异。当前,行业在向更高温、更高洁净度迈进时,正普遍面临一系列深层次的系统性挑战。这些问题根植于技术体系本身,而非单点故障。基于中杭嘉悦在高温、真空及材料装备领域的长期实践,本文旨在从行业视角出发,对核心控点、问题根源与发展路径进行系统

硅碳负极包覆沥青新设备1.背景说明在锂离子电池硅碳负极材料中,包覆沥青(通常为石油沥青或煤沥青)是一种重要的表面改性手段,其主要作用包括以下几个方面:1.1构建稳定的导电碳网络:沥青在高温热处理(碳化,通常800–1200°C)后会转化为无定形碳或部分石墨化碳层。这层碳包覆在硅颗粒表面,形成连续的导电网络,显著提升硅碳复合材料的电子导电性(纯硅导电性差)。1.2缓冲体积膨胀,提高结构稳定性:沥青碳

格律克为化工行业提供粉体处理解决方案,专门研发的系列设备不仅融合了先进技术与稳定性能,还满足了化工行业对设备经济性与安全性的要求。洗涤剂和肥皂日化和身体护理产品的生产与处理对投料、输送、喂料和造粒有着特殊要求。对于洗涤剂、香波等产品中常用的碳酸钠、磷酸盐、沸石、硫酸钠、碳酸钙这类原料,通常由卡车运至现场,再通过平稳的气力输送技术送入筒仓或中转料斗。槽罐或吨袋卸料、轻柔输送、精准混合以及液体喷淋,都

在现代工业生产流程中,粉体筛分是各行业广泛应用的基础工序。然而,在涉及可燃粉尘或易燃气体的筛分环境中,传统筛分设备极易因摩擦产生静电、电气部件出现火花等问题,引发火灾、爆炸等重大安全事故。纳维加特(上海)筛分技术有限公司始终将安全作为技术创新的核心导向。面对全球范围内日趋严格的安全法规要求与工业领域的升级转型需求,公司依托核心技术打造了一系列前瞻性的防爆筛分解决方案,既有效保障了生产线的连续稳定运

项目背景合作背景当前,燃气采暖热水炉行业正向更高能效、更低排放和更可靠安全的方向持续发展。国家强制标准 GB 25034-2020《燃气采暖热水炉》对各项排放指标,尤其是一氧化碳(CO)和氮氧化物(NOx)的限值提出了明确且严格的要求。对于重视长期发展的企业而言,满足标准仅是基础,要在竞争中建立优势,优化燃烧控制,并追求更高的环保等级,必须将工艺质量控制从后端检测前移至燃烧过程中的实时监测与动态优
- 1真空应用设备【2025年12月】
- 2真空配套设备【2025年12月】
- 3真空检漏设备【2025年12月】
- 4真空获得设备【2025年12月】
- 5KYKY钨灯丝扫描电镜
- 6KYKY场发射扫描电镜V02
- 7安东帕在线饮料分析仪样册——饮料生产
- 8四方仪器激光气体分析仪(防爆型)
- 【助力科研】粉末挤出3D打印破解多材料梯度惰性阳极烧结开裂难题,推动无碳铝电解发展
- 粉末挤出3D打印制备难熔金属和先进陶瓷发展趋势
- 顶刊速递|为什么温敏水凝胶的研究进展值得关注?
- 声共振机械合金化 制备Ni-Al反应材料的可行性研究与机理探讨
- 突破肽类高浓度制剂瓶颈 声共振技术实现稳定纳米悬浮
- 常驻顶刊!为何磁性纳米粒子的研究如此“高产”?
- 日本石川擂溃机化学工业实验用装置的高效选择
- 为什么COFs的催化应用近期顶刊不断?
- 从“作用”到“场域”:粉碎技术的范式演进与柯立微能量场理论的构建
- 大明化学氧化铝粉在低温烧结制粉中的应用
- Development, Characterization, and Molecular Dynamics Simulation of Andrographolide Nanosuspensions Utilizing Hummer Acoustic Resonance Technology
- 苏州碳丰科技首席科学家程金生老师以本公司名义在国际上发表关于石墨烯纤维的论文《石墨烯纤维纳米复合材料的合成及氨基酸检测的分析应用》:
- 介可视·散装物料库存管理雷达全景扫描系统在料仓、堆场中的应用
- 磷酸化修饰鬼臼果多糖的制备及生物活性
- DSR论文解读:Advanced Science News 报道中科院长春应化所新型非铂催化材料研究成果
- High-throughput preparation, scale up and solidification of andrographolide nanosuspension using hummer acoustic resonance technology(纳米混悬剂制备的前瞻性技术 - 蜂鸟声共振)

位置
